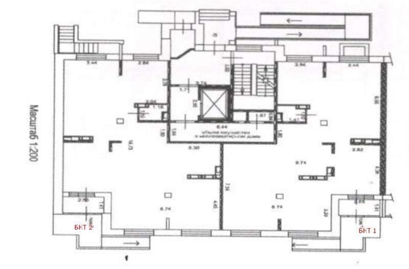
площадью 109,40 м2, по цене 8752000 по адресу Орехово-Зуево г - Орехово-Зуево, Клязьминский проезд,2к2

Цена 8 752 000 р.
Адрес Орехово-Зуево г, Орехово-Зуево, Клязьминский проезд,2к2
Площадь помещения 109,4 м2
Предлагается в продажу торговое помещение в новом жилом комплексе на Набережной. БКТ №1 Продажа от Застройщика. Помещение имеет отдельный вход. Удобная транспортная доступность. Первый этаж. Вся современная инженерия. Высота потолков 4 метра. Электрическая мощность 0,2 кВт на м2. Состояние помещений - под отделку.
Объявление № 23436777
Дата подачи:
20 октября 2025 г. 3:21
Дата обновления:
19 октября 2025 г. 4:00
Просмотров 6 Хотите продать быстрее?

Продавец
Отдел продаж
Показать номер телефона
Пожаловаться
Комментарии:
Добавить